路灯基础大样图
2018/11/13 10:34:22 点击:
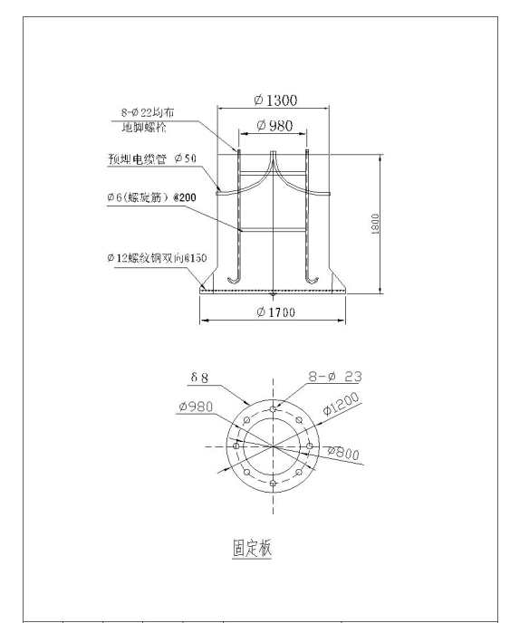
路灯基础大样图
路灯基础大样图要和路灯基础相配套:
路灯基础也叫预埋件,是用来固定灯杆的.在安装灯杆之前,先做好基础,在路灯安装的位置上挖坑,将基础埋在地下,用水泥进行浇筑,经过一周以后方可使用.路灯基础大样图要注意安装方向:
基础预埋时要注意将其中的一条边和路边平行,在浇筑水泥时要注意基础的稳定,切记不能让基础变形,否则安装路灯杆的时候就有可能安装不了.基础的长度一般在路灯杆高度的1/10,长度为法兰边长除以1.414.在基础的顶端预留10厘米左右的长度,用机器加工螺纹,方便路灯安装时用螺丝固定.
路灯基础大样图展示:
更多路灯基础规范和路灯基础做法等资讯请参考路灯官网:http://www.haiyanzhaoming.com
